
1A, 2A, 3A

1A, 2A, 3A
Included Features
- Modern architecture
- Fantastic location – 76 Walk Score and close to Grand Central
- Generously sized community courtyard
- ESW aluminum window package
- Full lite doors
- Conduit for future car charging capability at select parking spaces
- Low VOC paint + energy efficient lighting
- Wide plank, White Oak or Hickory LVP flooring
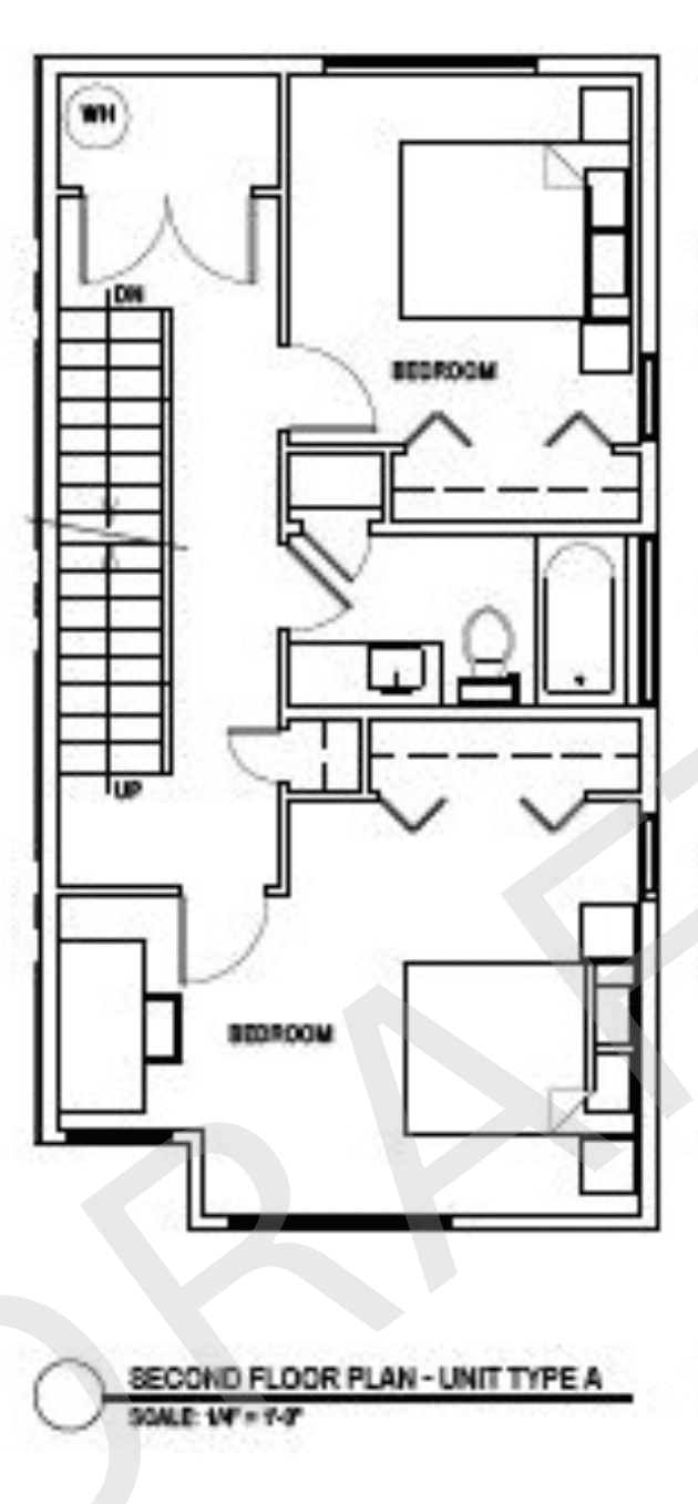
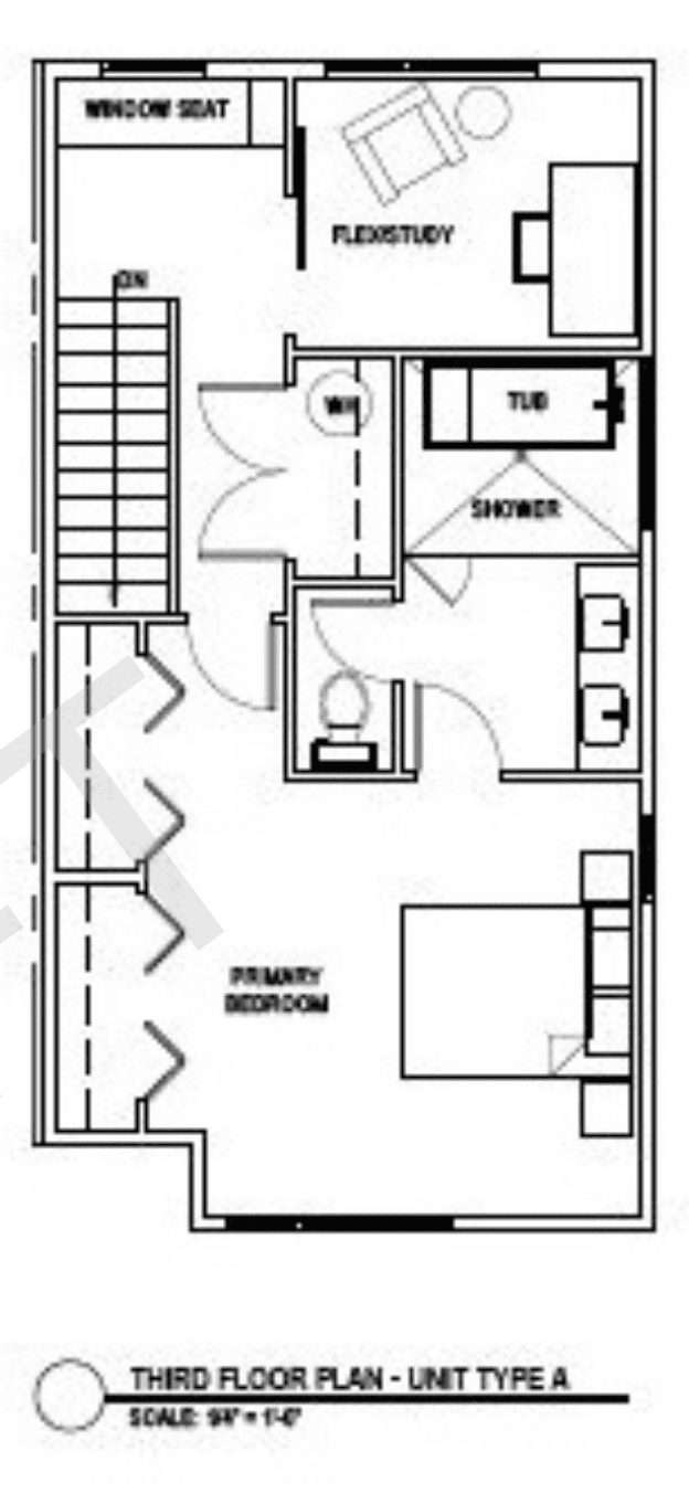
Floor Plans



- Square Feet: Pending
- Bedrooms: 3 + Flex
- Bathrooms: 2
- Starting At: Pending
Optional Features
Get Your Floorplan
Step into the warmth of Coastal Canopy, where natural textures meet timeless elegance. Inspired
by Florida’s coastal forests, this scheme blends rich wood tones, soft neutrals, and organic finishes
to create an inviting and serene atmosphere.
From deep wood grains to subtle coastal accents, Coastal Canopy balances sophistication and
comfort, offering a timeless design rooted in nature. Transform your home into a retreat that
embodies the tranquil beauty of Florida's coastline.